Skip to main content
Országépítő
Építészet | Környezet | Társadalom
Menü
Hírek
Épületek
Nézőpont
Média
Vándoriskola
Könyvek
Előfizetés
Élőépítészet
folytatni a Teremtést - Magyar élő építészet a 20 éves Kós Károly Egyesülés kiállítása az Iparművészeti Múzeumban
Épületek
Elődök
Külföld
Időrend
Csíkmindszent - Faluház
Tervező: Esztány Győző
Épületek
Építészek
Kós Károly Egyesülés tagok
Egyesülésen kívüli építészek
APADANA Kft.
Anthony Gall
Berta Attila
Csete György
Deák László
Ekler Dezső
Erdei András ?
FORMA Építész stúdió
Ferencz István
Ferencz Marcel
Fülöp István
Grátz Antal
Gulybán Ede
Hegedűs Zsolt
Helyes Gábor
Jakab Csaba
Kistelegdi István
Kovács Gábor
Kovács Ágnes
Kölönte Zsolt ?
Ladislav Friedman
Markót Imre
Mezei Gábor
Mohay Gábor, M.Farkas Ilona
Márton László Attila
Nagy Ervin
Nagy Tamás
Oltai Péter
Pásztor Péter
Rostás László
Rácz Zoltán
Révai Attila
Rőmer Károly
Salamin Pál
Siklósi József
Sugár Péter
Sziklai Ákos
Szécsi Zsolt
Taba Benő
Tamás Gábor
Tóthfalusi Gábor
Vincze László
Zsuffa Zsolt
Belsőépítészet
Faluházak
Fontosabb épületek
Középületek
Lakóházak
Szakrális épületek
Ökológia
You are here
Home
»
Épületek
»
Építészek
»
Egyesülésen kívüli építészek
»
Kovács Gábor
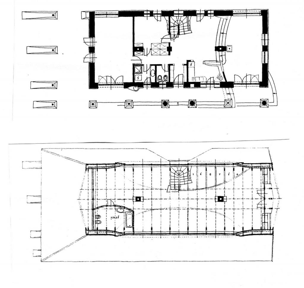
Balassagyarmat - saját ház
Tervező:
Kovács Gábor